Italiano
3 Bagni 85 m2
Caratteristiche principali
Codice
selargtius locale commerciale
Prezzo
98.000 EUR
Classe
E
Locali
3
Altre caratteristiche e accessori
Stato Immobile
Ottimo
Grado
Signorile
Posizione
Centro
Panorama
Vista Aperta
Lati Liberi
2
Riscaldamento
Autonomo
Infissi
Alluminio Doppio Vetro
Serramenti
Buono
Accesso Disabili
Nessuna Barriera
Accessori
Aria Condizionata, Bagno Handicap
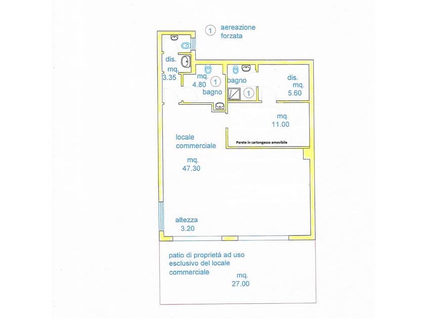
Rif. AP01 Selargius nella Borgata Santa Lucia in via Michelangelo Pira n. 19/21, locale commerciale di 85 mq catastali, composto da porticato pertinenziale anteriore esterno coperto, tre vetrine di cui due fronti strada, una sala commerciale, un altro vano e tre bagni di cui uno per portatori di Handicap. Altezza interna 3,20 m. Apertura con serrande elettriche. Impianti a norma, termo condizionato, buono stato manutentivo, ristrutturato nel 2019, mutuabile, agibilità presente. Ultima attività svolta bar caffetteria. A seconda delle esigenze la dimensione del locale commerciale può essere ampliata eliminando le pareti di cartongesso che suddividono attualmente gli ambienti presenti. Classe energetica F. disponibilità di parcheggi fronte locale. Le richieste anonime e senza recapito telefonico non verranno prese in considerazione, astenersi perditempo. Prezzo richiesto € 125.000,00 trattabile.

Cap 09047
Condominio 22 euro mensili
Anno di costruzione 1984
Cookie preference